Luxury Villa for Sale in Ciudad Quesada – Villa Laura Especial with Private Pool
Luxury Villa for Sale in Ciudad Quesada – Villa Laura Especial with Private Pool
Quesada, Alicante, Spain- | New build
- 3 beds
- 2 baths
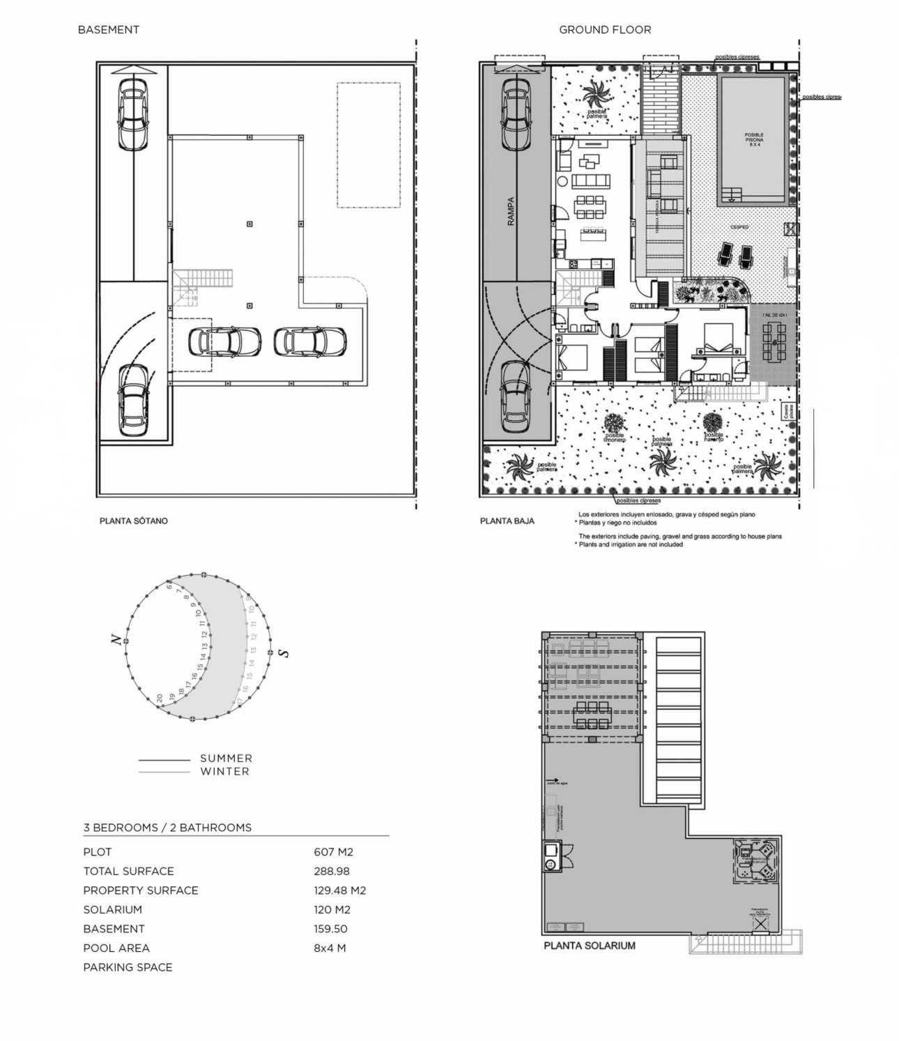
- 129.48 m²
- Pool: Yes
- Distance to beach: 8000 m
Basics
Ask an Agent About This Home
Description
-
Description:
Discover Villa Laura Especial, a stunning luxury villa for sale in Ciudad Quesada, designed to offer maximum comfort, privacy, and Mediterranean lifestyle in one of the most desirable areas of the Costa Blanca.
This elegant detached villa is distributed on one level and features 3 spacious bedrooms and 2 modern bathrooms, идеально suited for both permanent living and holiday use. The bright open-plan living and dining area with a modern kitchen seamlessly connects to the outdoor space through large windows, creating a perfect indoor-outdoor living experience.
🌴 Outdoor Living at Its Best
Enjoy your own private garden with swimming pool (8x4 m), relaxation areas, pergolas, and plenty of space for outdoor dining and entertainment. The property also includes a private garage in the basement with space for 2 cars.📐 Property Features
- Total built area: 288.98 m²
- Living area: 129.48 m²
- Basement: 159.50 m²
- Solarium: 120 m²
- Plot: 607 m²
- 3 bedrooms, 2 bathrooms
- Private pool included
- 2 pergolas
- Private garage
📍 Prime Location – Ciudad Quesada
Located in a prestigious residential area, the villa offers:- Only 8 minutes to the beach
- 5 minutes to golf courses
- Close to shopping centers, restaurants, and leisure
- 40 minutes to Alicante Airport
- Easy access to healthcare and international schools
✨ Why This Property is a Great Investment
- High-demand area on the Costa Blanca
- Strong potential for rental income (holiday & long-term)
- Modern design with premium outdoor living
- Large plot and full privacy
- Excellent connectivity and infrastructure
- Ideal both as a lifestyle home and investment asset
📅 Completion Date
Show all description
Planned completion: Summer 2026
Location
Floor Plans
- Floor plans:

