MLSC7134608 / Orihuela Costa / Alicante / Spain
MLSC7134608 / Orihuela Costa / Alicante / Spain
Orihuela Costa- Date added: 10.03.2026
- Bungalow | Secondary market
- REF: MLSC7134608
- 2 beds
- 1 bath
- 75 m²
- Pool: Yes
Basics
Ask an Agent About This Home
Description
-
Description:
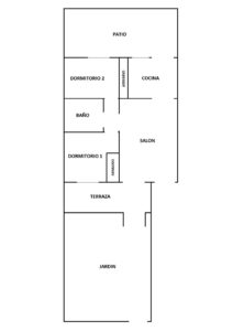
For sale: 2-bedroom bungalow with a 36 m² paved plot featuring a subtropical garden with canaries, located in a condominium with swimming pool and private parking. The bungalow is situated in the Lomas Cabo Roig area, on Castillo del Río street in Orihuela Costa, Alicante province, Spain. A quiet, picturesque location with views of the park and the sea. Nearby you will find the English supermarket Iceland, cafés and small shops. The bungalow offers 75 m² of built area, a 36 m² garden plot, an interior patio-laundry room of 19 m², and a 15 m² terrace at the entrance. Built in 2005. Layout: living room with separate kitchen and patio, 2 bedrooms and a full bathroom. For sale in excellent condition, no renovation needed, with furniture and household appliances
Show all description

