MLSC7593269 / Crevillent / Alicante / Spain
Basics
Ask an Agent About This Home
Description
-
Description:
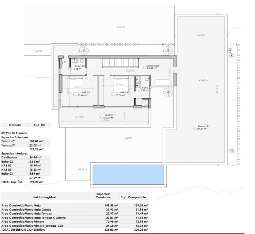
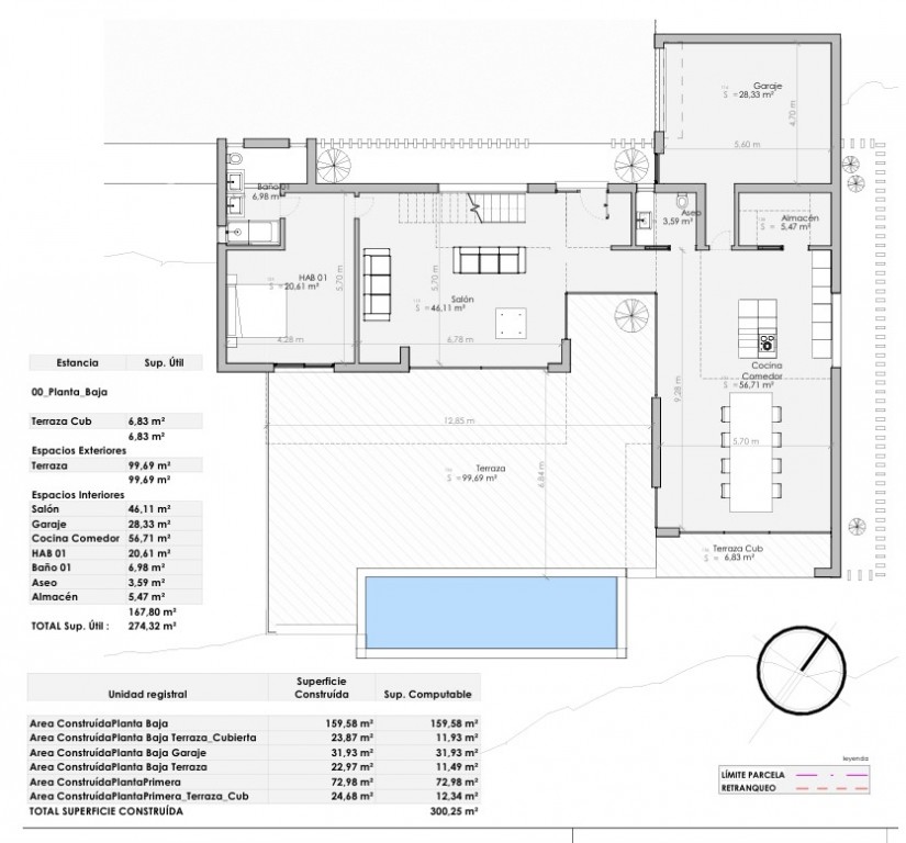
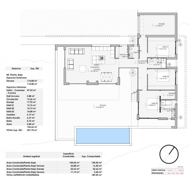
Discover Your Dream Plot – Endless Possibilities Await!Nestled in an idyllic setting, this expansive 16,000m² plot offers the perfect canvas to bring your dream home to life. With an exceptional building allowance of 2%, you can design and construct a stunning villa of approximately 325m² – a true haven of luxury, space, and serenity.Whether you’re envisioning a modern architectural masterpiece, a classic villa, or a countryside retreat, this plot caters to your imagination. Choose from two pre-designed building options tailored to maximize the potential of this extraordinary site, or purchase the plot solo and let your creativity soar with a bespoke project.Why this plot is perfect for you:Size and Privacy: 16,000m² ensures ample space for lush landscaping, outdoor leisure areas, and complete privacy.Flexibility: Opt for a turn-key building project or start from scratch with your own vision.Prime Investment: A unique opportunity in a sought-after location, offering both tranquility and value growth.This is more than a plot; it’s an invitation to create a lifestyle that perfectly reflects your aspirations. Don’t miss the chance to build your dream villa or secure a valuable piece of land in a prime location.Contact us today to learn more or arrange a viewing. Your dream home starts here!
Show all description

