N3639AT / Benidorm / Alicante / Spain
N3639AT / Benidorm / Alicante / Spain
Benidorm- Date added: 01.08.2024
- penthouse | New build
- REF: N3639AT
- 3 beds
- 2 baths
- 297 m²
- Pool: Yes
- Distance to beach: 50 m
1,650,000€
Request info
Basics
Ask an Agent About This Home
Description
-
Description:
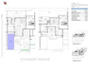
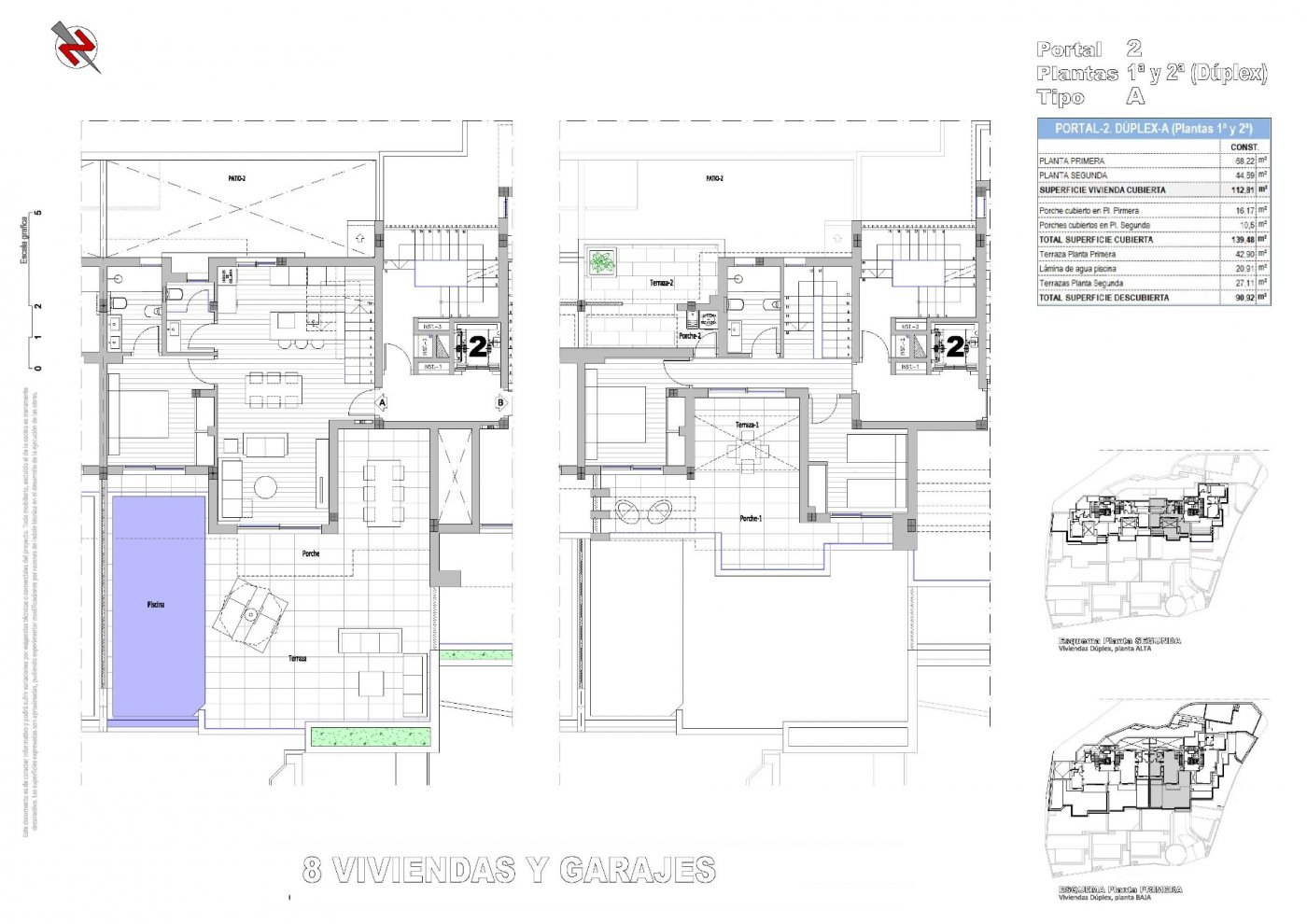
FIRST LINE OF BEACH IN BENIDORM AND WITH PRIVATE POOL !!!
Located on the 1st line of Playa Poniente in Benidorm. With stunning views of the entire bay.
Penthouse, equipped with 3 bedrooms, 2 bathrooms, living room, kitchen, large terrace and private pool
Equipped with air conditioning, underfloor heating, elevator, garage, storage room, electrical appliances.
It has all the services around: supermarkets, restaurants, pharmacies, banks.
Distance to the airport 40 km and to the Golf 10 km. The city of Alicante is 30km away.
Show all description
Location
Amenities & Features
- Features:
Powered by Estatik

