N5810 / Orihuela Costa / Alicante / Spain
N5810 / Orihuela Costa / Alicante / Spain
Orihuela Costa- Date added: 01.06.2028
- apartment | New build
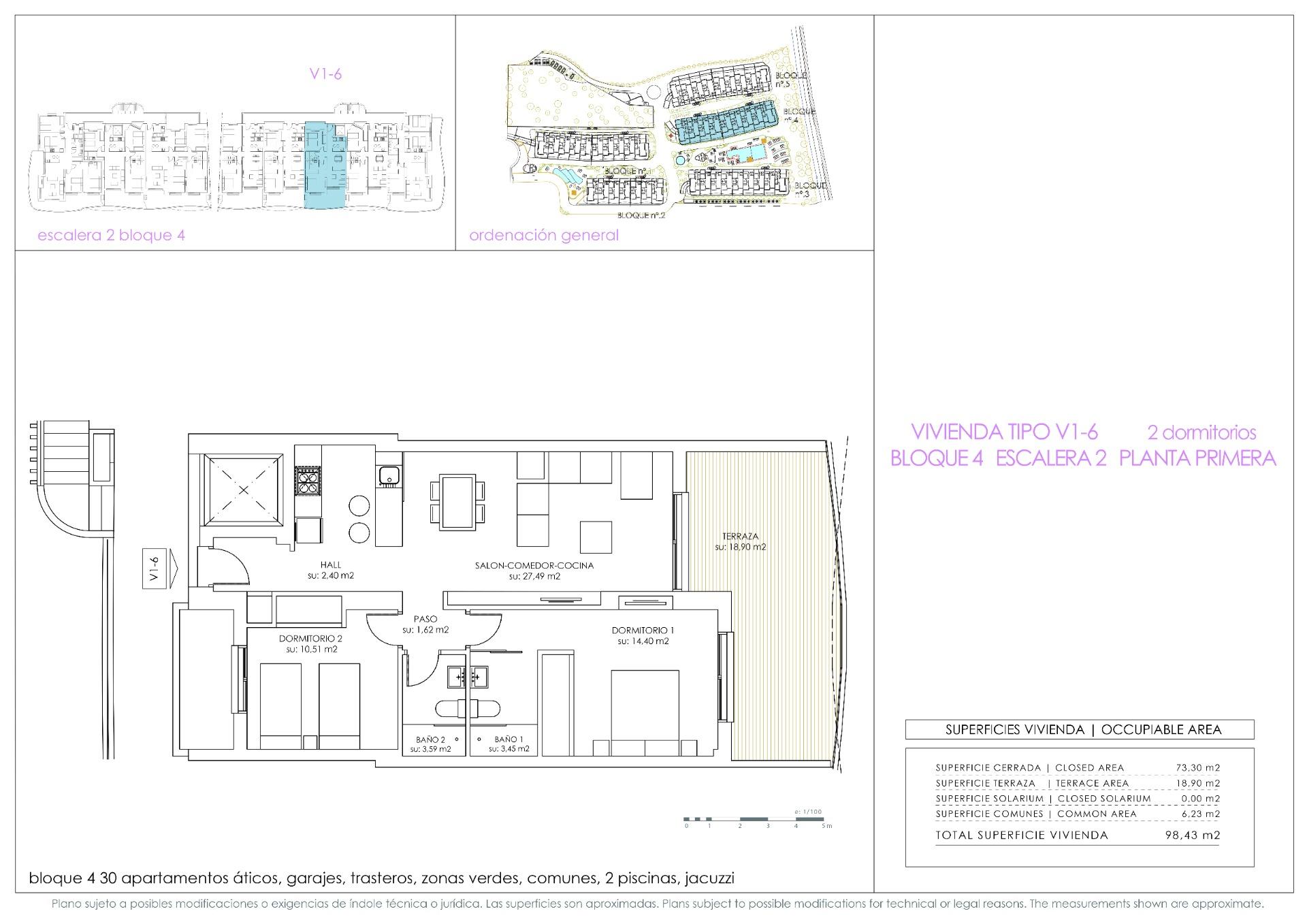
- REF: N5810
- 2 beds
- 2 baths
- 73 m²
- Pool: Yes
- Distance to beach: 500 m
Basics
Ask an Agent About This Home
Description
-
Description:
NEW BUILD RESIDENTIAL AT PLAYA FLAMENCA!!!
From a well established developer we are proud to offer this just released new residential just 500 m away from sea at popular Playa Flamenca (Orihuela Costa).
Residential with nice comunal pools, jacuzzis and nice common gardens. All services like supermarkets, bars and restaurants, etc are within walking distance in a very central spot at Orihuela Costa.
Wide variety of types to choose from: studios, 1, 2 or 3 bedroom apartments. Low floors with private gardens or top floors with private solariums. All houses come with a parking space and a storage room included in the price.
Zenia Boulevard shopping center 1km away and several golf courses like Villamartin, Campoamor within 5 km from this residential will make an ideal location for your holidays or your permanent living.
Show all description
Location
Amenities & Features
- Features:

