N6659 / Los Alcazares / Murcia / Spain
N6659 / Los Alcazares / Murcia / Spain
Los Alcazares- Date added: 01.12.2026
- villa | New build
- REF: N6659
- 3 beds
- 2 baths
- 108 m²
- Pool: No
- Distance to beach: 1000 m
Basics
Ask an Agent About This Home
Description
-
Description:
NEW BUILD VILLAS IN LOS ALCAZARES
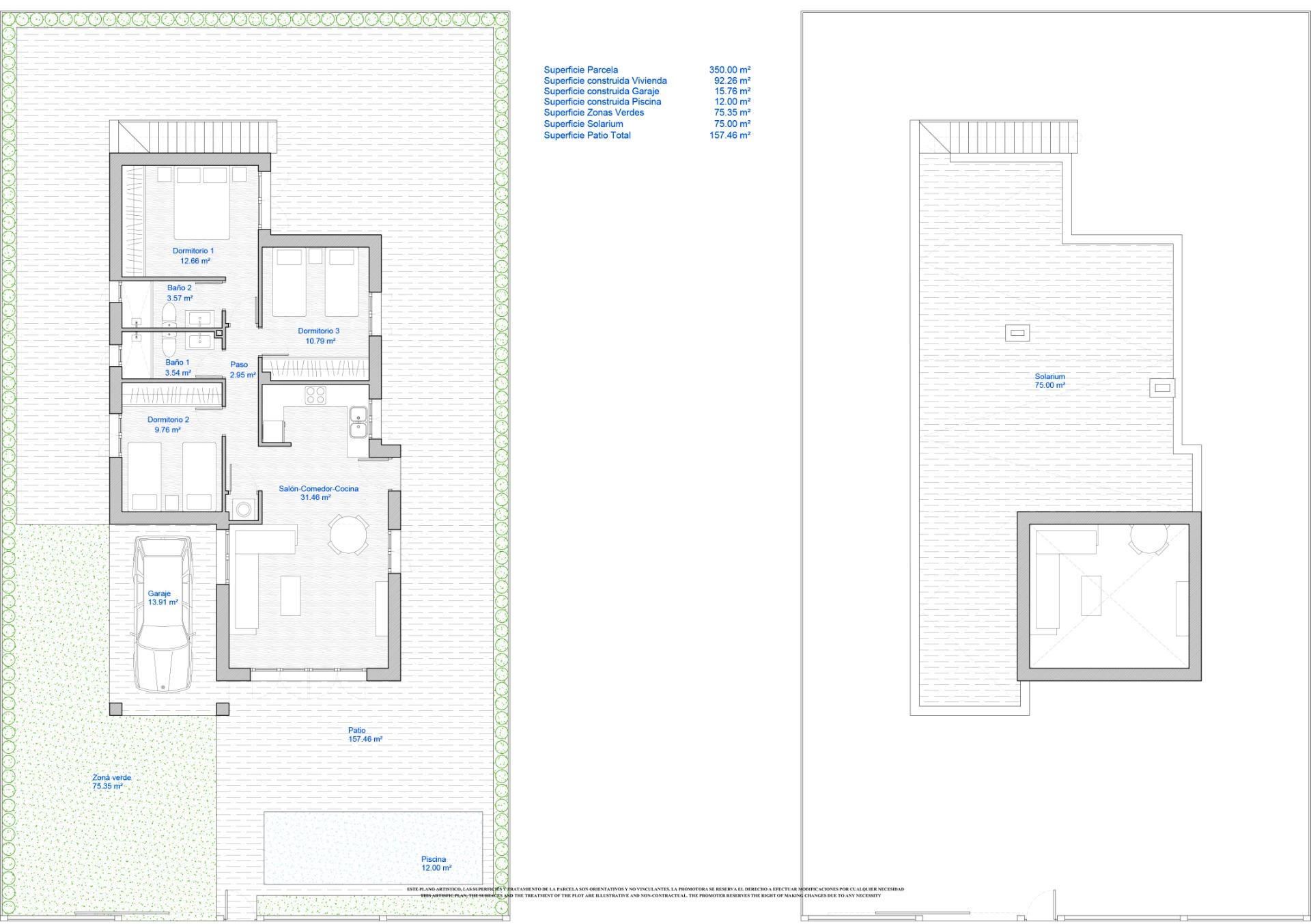
New Build detached villa build on the generous plot of 350m2 in Los Alcazares .
Villa with 3 bedrooms and 2 bathrooms, open plan kitchen with the lounge area, fitted wardrobes, solarium, private garden with off road parking space and space for a swimming pool.
An options for a private pool at an extra cost.
Spacious living room has large sliding doors to a terrace.
Ample terraces at the front and rear ensure that owners can sunbathe throughout the day.
This villas have modern fitted kitchens with a choice of colours for kitchen units and wall tiles in both kitchens and bathrooms and also floors and terraces.
Residential of villas located 1 km from the beach and the town of Los Alcázares, where you can practice various water sports, surrounded by several golf courses.
City of Cartagena less than 15 minutes by car and 30 minutes from Murcia Corvera airport.
Show all description
Location
Amenities & Features
- Features:

