N6962 / Torre Pacheco / Murcia / Spain
N6962 / Torre Pacheco / Murcia / Spain
Torre Pacheco- Date added: 01.07.2026
- villa | New build
- REF: N6962
- 4 beds
- 3 baths
- 140 m²
- Pool: Yes
- Distance to beach: 15000 m
Basics
Ask an Agent About This Home
Description
-
Description:
NEW BUILD VILLAS IN ROLDAN
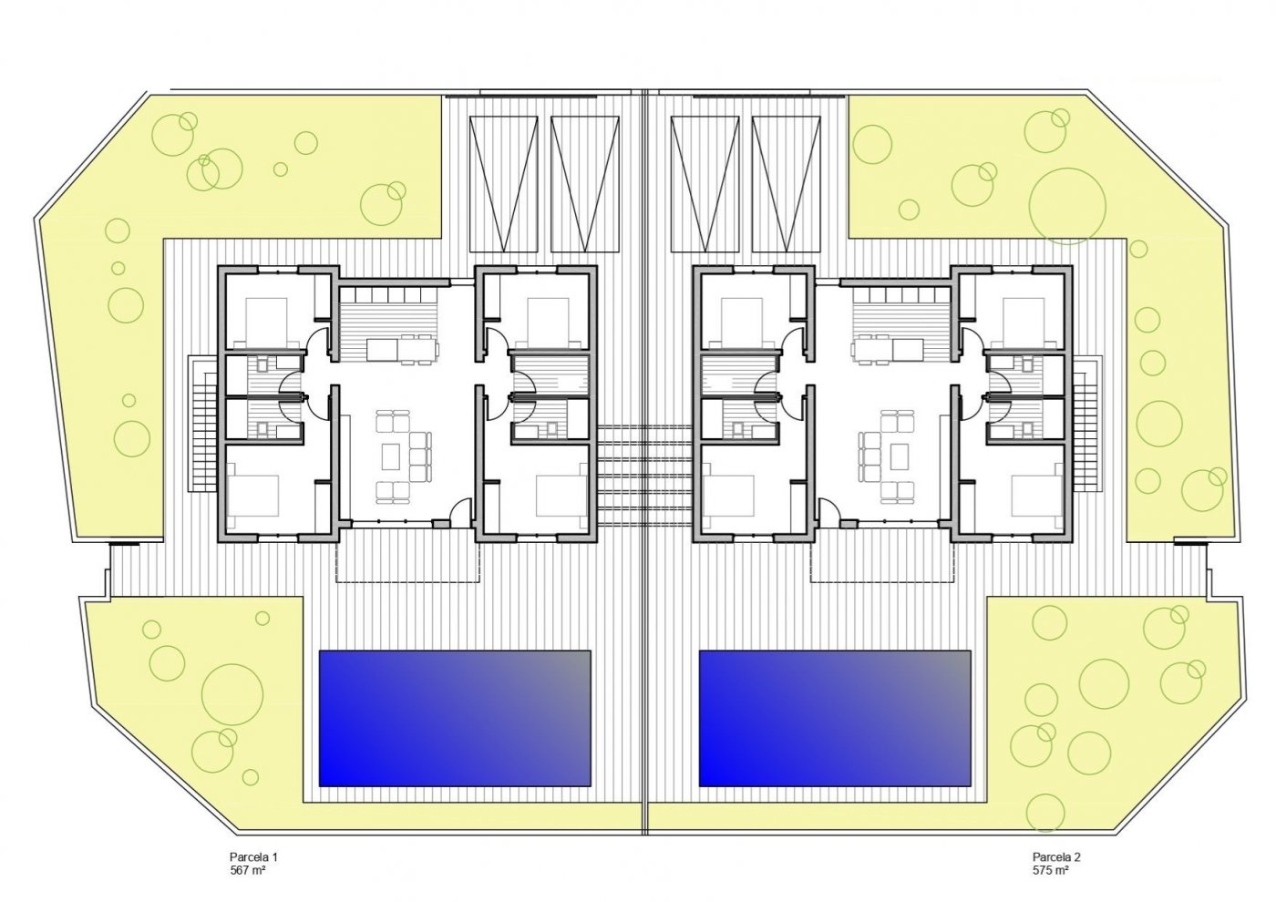
Luxury 2 one level New Build villas in Roldan, Murcia.
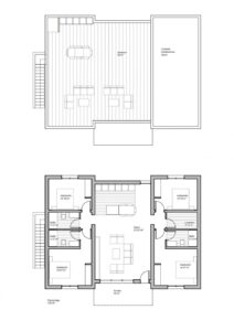
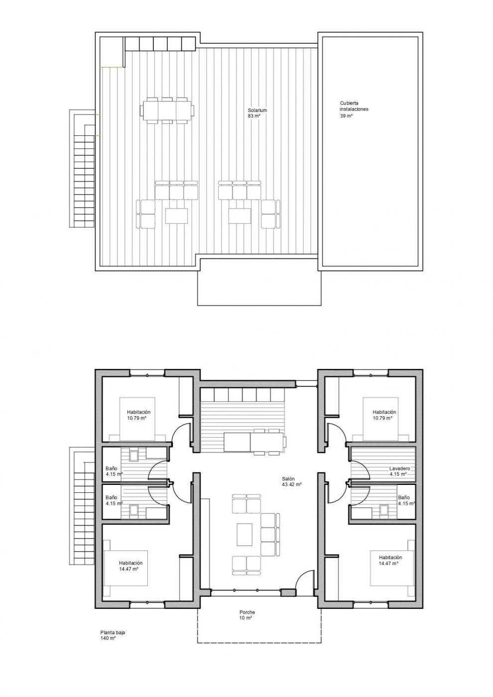
Villas build on the plots of nearly 600 M2 each one, with private pool of 30 M2, garden area and large solarium on the roof.
Each property has 4 bedrooms and 3 fitted bathrooms and have been designed with a contemporary style and an open planned concept, consisting of a fully-fitted kitchen and lounge-dining room.
The development is located in Roldán (Murcia), in a gated and security control resort, included in a partial plan of 300,000 M2, surrounded by all services, sports facilities and near several Golf Courses.
The property will meet the highest standards and will be equipped with:
Private swimming pool of 30 M2 with solar shower.
Pre-installation for heated pump.
Kitchen completely furnished and equipped with raised oven, built-in microwave, integrated dishwasher, fridge and extractor fan.
Island area in the kitchen.
LED Lighting: inside the property (dining room, kitchen, corridors and bathrooms), as well as in outdoor areas.
Lined wardrobes with drawers.
Fully fitted bathrooms with suspended vanity unit and suspended toilet, mirror with light, shower with "rain effect" and shower screens.
Pre-installation for ducted air conditioning.
Summer kitchen with sliding doors in solarium. Pre-installation for washing machine and fridge socket.
Solar panel.
Parking on the plot.Roldan itself is a traditional town with all the local amenities you will need including Supermarkets, Restaurants, Bars, Health Clinic, Pharmacy, Police Station, Petrol Station, Mechanics, Dentists, Doctors and more.
The nearby golf resorts of La Torre, & Terrazas are easily accessible, Corvera Airport is 15 minutes away & the beaches of the Mar Menor just 20 minutes drive.
Show all description
Location
Amenities & Features
- Features:

